Makléř: Ing. Zdeněk Florián
Telefon: 775 686 ...
E-mail: florian ...
Zobrazit celý kontaktTelefon: 775 686 737
E-mail: florianz@nonstopreality.cz
Nemovitost nabízí
1. Nonstop Reality
Štefánikovo náměstí 1972/2, 586 01 Jihlava
Zobrazit kontakt na RK773 240 001
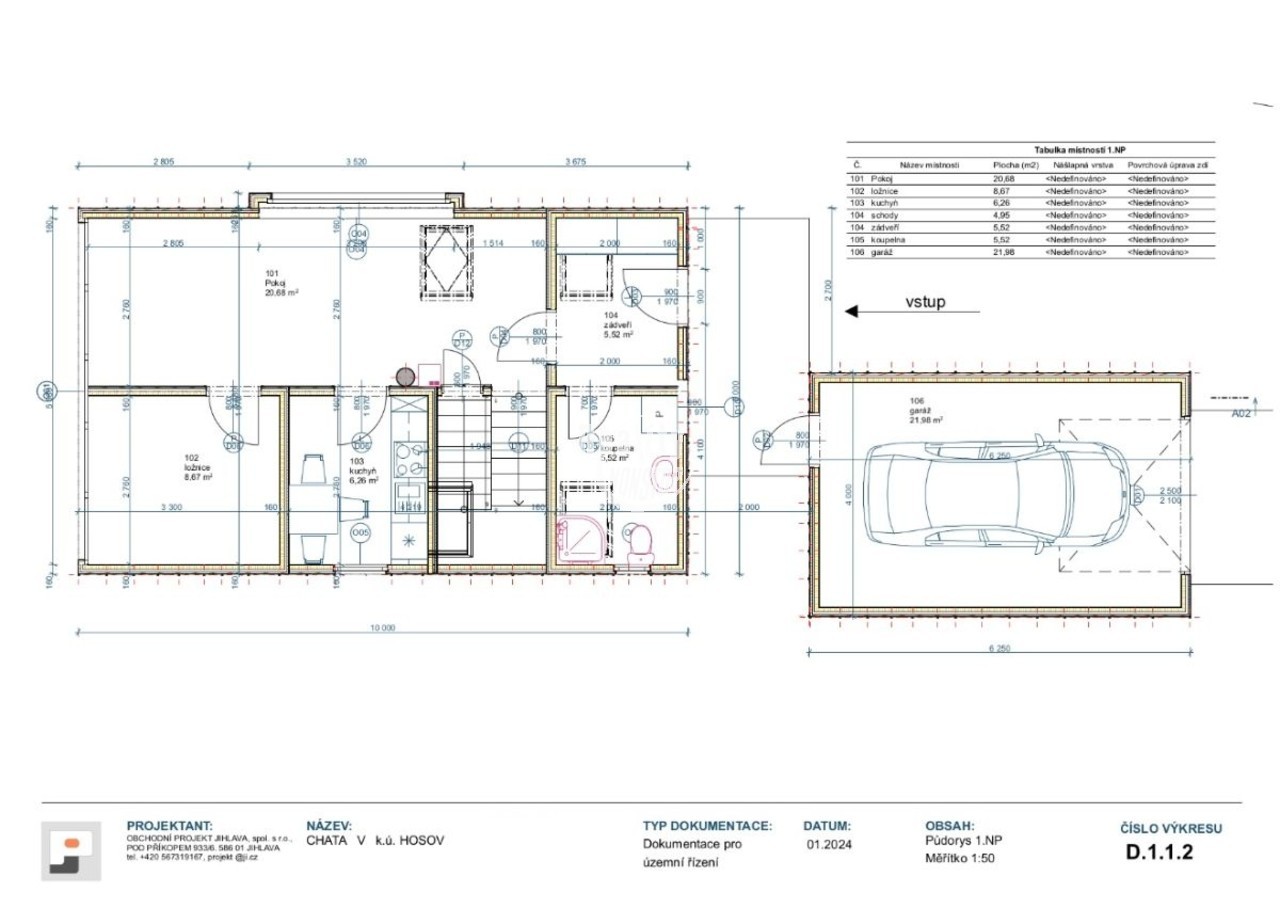
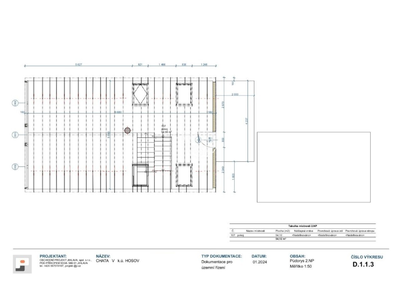
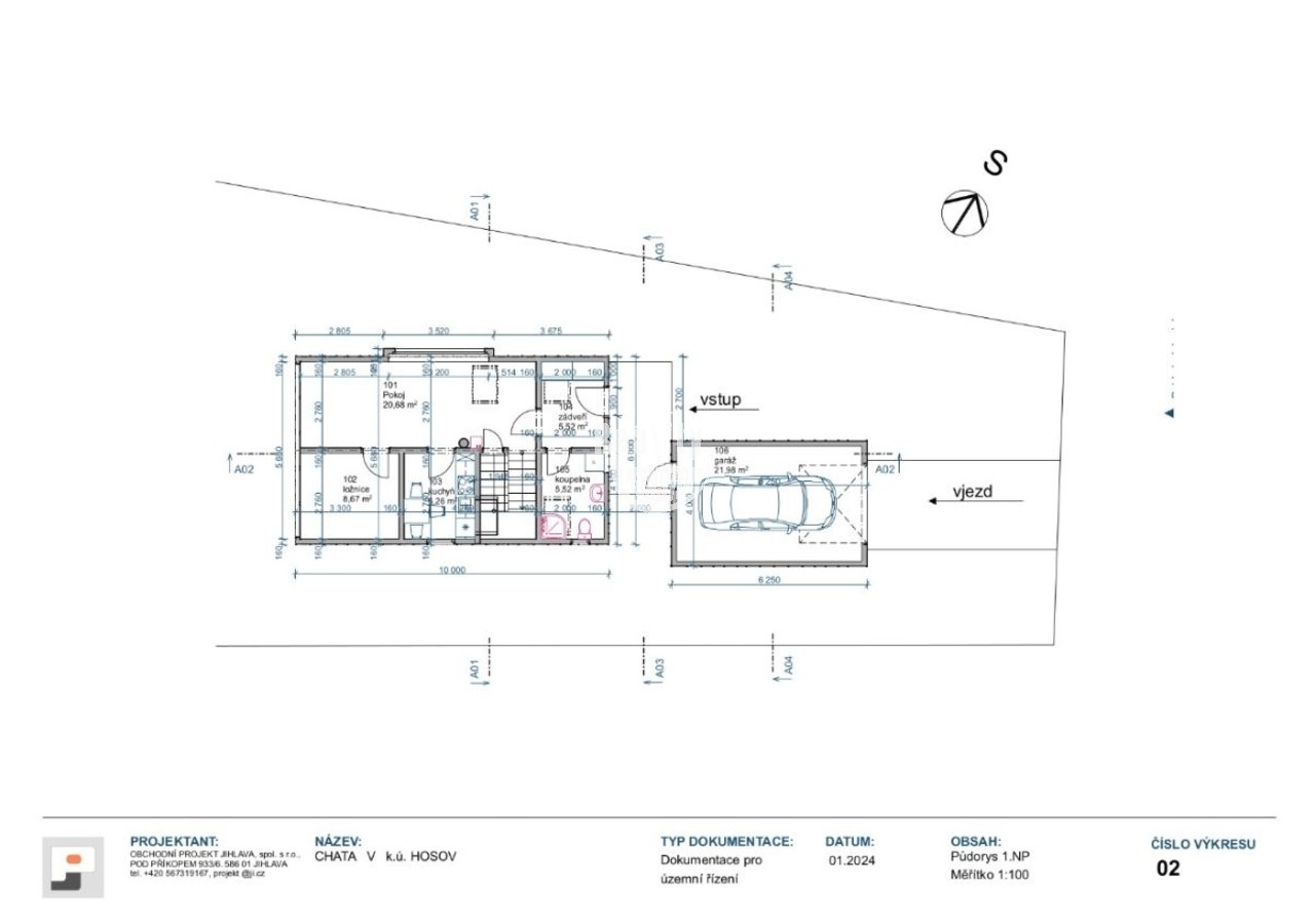
Exkluzivní pozemky pro Vaše rekreační či trvalé bydlení s platným povolením a přípojkami! Lokalita: Jihlava, katastrální území Hosov. Nabízíme vám jedinečnou šanci získat jeden ze dvou výjimečných stavebních pozemků, ideálních pro výstavbu vašeho nového, moderního bydlení ve formě dřevostavby. A co je nejdůležitější: veškerá příprava je hotová! Co získáte? Platné stavební povolení pro výstavbu (projektováno jako "chata pro rekreaci" s garáží - označení upraveno pro soulad s územním plánem, ale je určené pro dlouhodobé bydlení). Inženýrské sítě: Samostatná přípojka elektřiny nově přivedená na pozemek. Vlastní vrtaná studna (hloubka 33 metrů) zajišťující nezávislý zdroj vody. Připravený projekt: Navržena je moderní budova o celkové obytné ploše 120 m2 (60 m2 přízemí + 60 m2 podkroví) s prostornou garáží (24 m2) a terasou nad ní. Atraktivní výhledy: Návrh klade důraz na velkoplošná okna a otevřené výhledy do přírody a na řeku Jihlavu. Bezpečné umístění: Obě navržené budovy jsou umístěny mimo aktivní záplavovou zónu. Dostatek času: Stavební povolení je platné až do 30. 9. 2030 s možností prodlužování tohoto termínu. Přístup: Příjezd je zajištěn po asfaltové místní komunikaci. Možnost výběru ze dvou pozemků: 1. (parc.č. 259/1 + 788) 586 m2 s cenou 1 732 000,- Kč 2. (parc.č. 259/7)554 m2 s cenou 1 682 000,- Kč Obě varianty jsou aktuálně po výrazné SLEVĚ. Důležité: Vlastník se rozhodl prodat pouze jeden z těchto pozemků, na druhém plánuje stavět vlastní bydlení. Nezáleží na tom, který si vyberete - volba je jen na vás. Kompletní projektová dokumentace je schválená stavebním úřadem v Jihlavě a je k dispozici. I když je vydáno povolení na dvě stavby, každou lze zkolaudovat samostatně a nezávisle. Bližší informace Vám rádi poskytneme při osobním jednání.
Prodej stavebního pozemku 3957 m2, Jihlava
Nabízíme k prodeji stavební pozemek o celkové výměře 3957 m v Pávově, v okrajové části této klidné obce. Jedná se o klidné místo v těsném dosahu…
Prodej pozemku pro stavbu domu v Popicích u Jihlavy, 1282 m2, elektřina a vodovod u pozemku
Nabízíme k prodeji pozemek pro stavbu rodinného domu v Popicích, rozvíjející se městské části krajského města Jihlava. Pozemek se nachází na okraji…