Makléř: Petr Mašek
Telefon: 800 775 ...
E-mail: info-re ...
Zobrazit celý kontaktTelefon: 800 775 577
E-mail: info-reality@swisslifeselect.cz
Nemovitost nabízí
Swiss Life Select Reality
Pobřežní 620/3, 186 00 Praha
Zobrazit kontakt na RKinfo-reality@swisslifeselect.cz
800 775 577
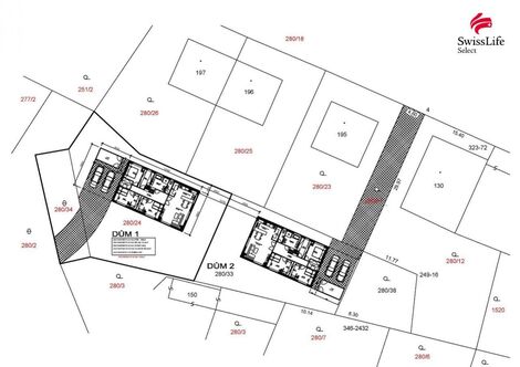
Nabízíme k prodeji rovinatý pozemek v obci Kozlov u Jihlavy. Jedná se o velmi atraktivní lokalitu, která kombinuje klid venkovského prostředí s výbornou dostupností do krajského města Jihlava, kam se pohodlně dostanete během několika minut jízdy. To samé platí i o nájezdu na dálnici D1. Pozemek se nachází v obci s funkčním zázemím najdete zde mateřskou a základní školu, hospodu, obchod nebo sportovní areál. Samotný pozemek je rovinatý, s kvalitní půdou a nabízí ideální podmínky pro výstavbu rodinného domu. Možností je také na již rozděleném pozemku postavit dva rodinné domy s tím, že každý by měl svoje napojení na sítě a svůj příjezd, jak je patrno z mapky a přiložené studie. Zde se tedy jedná o prodej menší části nabízeného pozemku, a to o velikosti 607 metrů. Na pozemku je k dispozici dřevěná kůlna k uložení nářadí, což se na stavbě vždy hodí. Veškeré inženýrské sítě se nacházejí na hranici pozemku, což výrazně usnadňuje napojení a snižuje náklady na budoucí výstavbu. Kozlov je vyhledávanou lokalitou díky své poloze, příjemné atmosféře a okolní přírodě. Místo je ideální pro ty, kteří hledají klidné bydlení s veškerým komfortem a rychlým spojením do města. Pro více informací nebo sjednání prohlídky nás neváhejte kontaktovat. Rádi Vám poskytneme veškeré detaily a pomůžeme i s kompletním právním a finančním servisem. <a href="https://www.eurobydleni.cz/pozemky/stavebni-pozemek-bydleni/ceske-budejovice/obec-vitin/prodej/"><strong>Prodej stavebního pozemku Vitín</strong></a>
Prodej stavebního pozemku 1381 m2, Kozlov
Nabízíme k prodeji rovinatý pozemek v obci Kozlov u Jihlavy. Jedná se o velmi atraktivní lokalitu, která kombinuje klid venkovského prostředí s…
Prodej stavebního pozemku 774 m2, Kozlov
Nabízíme k prodeji rovinatý pozemek v obci Kozlov u Jihlavy. Jedná se o velmi atraktivní lokalitu, která kombinuje klid venkovského prostředí s…
Prodej stavebního pozemku Kozlov na Eurobydleni.cz