Aktuálně můžete v lokalitě Jihlava vybírat z nabídky 13 pozemků.
Přehled nemovitostí: prodej pozemky > stavební pozemky Zpět na přehled nabídek

Prodej stavebního pozemku se základovou deskou, Láz u Nových Syrovic

1 062 m2

osobní

N1280

Cena: 1990000 CZK / objekt
Poznámka k ceně: včetně provize RK 1

Poslat dotaz k nabídce
Zásady používání osobních údajů

Prodejce

Makléř: Ing. Michal GALBAVÝ

Telefon: 776 050 ...

E-mail: info@rk ...

Zobrazit celý kontakt

Nemovitost nabízí

RK Fokus s.r.o.

Vaňkovo nám. 234/13, 674 01 Třebíč

www.rkfokus.com

Zobrazit kontakt na RK

Zobrazit všechny nabídky RK

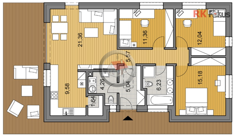
Nabízíme na prodej stavební pozemek se základovou deskou v obci Láz, okres Třebíč, o celkové výměře 1062 m2. K pozemku se dále prodává poloviční podíl na pozemku, který slouží jako přístupová cesta. Pozemek je určený pro výstavbu rodinného domu (je vydáno stavební povolení na výstavbu typového RD o dispozici 4+kk) a nachází se v klidné části obce s obytnou zástavbou. Přístup k pozemku je po asfaltové komunikaci. Na pozemku je již vyhotovena přípojka na inženýrské sítě včetně obecního vodovodu, kanalizace a elektřiny (230V a 400V) datový kabel pro možnost připojení internetu je položen rovněž od elektroměrového rozvaděče a je přiveden do základové desky, dále jsou od domu (od místa vchodových dveří) položeny chráničky s kabely k vchodové brance a bráně pro vjezd auta + další chránička s elektrovývodem pro zahradu (např. pro budoucí bazén/saunu atd.) Kanalizace je zaústěna do obecní kanalizace, vzhledem k nedostatečnému sklonu je kanalizace řešena tlakovou jímkou, do které bude umístěno čerpadlo. V tuto chvíli je na pozemku jímka již zabudována a je napojena jak na obecní kanalizaci, tak napojena do základové desky. Od jímky k základové desce je uložena chránička, do které se zatáhnout kabely pro ovládání čerpadla. Díky své poloze nabízí ideální kombinaci klidu venkova s dobrou dopravní dostupností autobusem či silnicí. Zastavěná plocha činí 150 m2, což skýtá široké možnosti pro uspořádání budoucího obydlí a okolního prostoru. Tento parádní pozemek je připravený stát se základem pro váš nový domov. Započít stavbu je možné ihned (na vedlejším pozemku aktuálně probíhá stavba identického projektu), pro více informací kontaktujte RK.



Nahoru